phone
Sprzedaż mieszkań 85 74 15 087  |  mieszkania@kombinatbud.pl
◂ Strona Główna / Inwestycje / Apartamenty Czysta / Czysta _ m. 11

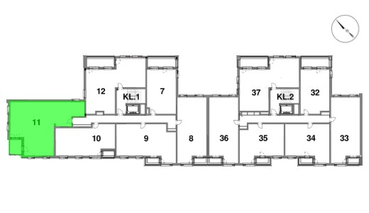
Czysta _ m. 11

Metraż 111,36 m²
Liczba pokoi w mieszkaniu: 4
Piętro Piętro II
Piwnica w cenie mieszkania

1 314 000 PLN

Historia cen

11 800 PLN/m²

Pomieszczenia przynależne:

Piwnica nr 17: (w cenie)
Białystok, Czysta _

Odbiór mieszkania: listopad 2027

  • Prestiżowy adres – ul. Czysta w Białymstoku, spokojna boczna ulica w centralnej części miasta,
  • Tuż za rogiem ścisłe centrum – ok. 2 km do Ratusz Białostocki i Pałac Branickich,
  • Lokalizacja do życia - zaprojektowana z myślą o codziennym komforcie i spokoju.

O inwestycji

Apartamenty Czysta to kameralna inwestycja zlokalizowana przy ul. Czystej w Białymstoku — w miejscu, które łączy bliskość centrum z codziennym spokojem. Czterokondygnacyjny budynek obejmuje tylko 49 przestronnych mieszkań, zaprojektowanych z myślą o komforcie i wysokiej jakości życia w mieście.


Architektura budynku została starannie zaprojektowana, by harmonijnie wpisać się w otoczenie, a nowoczesna elewacja i dopracowane części wspólne podkreślają jego elegancki, kameralny charakter. W budynku przewidziano cichobieżne windy z dostępem do garażu podziemnego, salę zabaw dla dzieci oraz funkcjonalne przestrzenie wspólne, sprzyjające codziennemu komfortowi mieszkańców.


Pokaż inwestycje
lokal dostępny
lokal zarezerwowany, prosimy o kontakt z działem sprzedaży

Inne mieszkania

Adres
Piętro
Pokoje
Pow Powierzchnia
Cena brutto
Wizualizacja
Status
Czysta _ m. 5 Piętro I 4 111,36 m2
1 314 000 PLN
Historia cen
Dostępne
Ładowanie planów...
Ładowanie obrazu...

Czysta _ m. 5

Powierzchnia
111,36 m2
Piętro
Piętro I
Liczba pokoi
4
Cena
1 314 000 PLN
Cena/m²
11 800 PLN
Odbiór do
15.11.2027
Pomieszczenia przynależne
Piwnica nr 20: piwn. nr 20: (w cenie)
Czysta _ m. 17 Piętro III 4 111,36 m2
1 314 000 PLN
Historia cen
Dostępne
Ładowanie planów...
Ładowanie obrazu...

Czysta _ m. 17

Powierzchnia
111,36 m2
Piętro
Piętro III
Liczba pokoi
4
Cena
1 314 000 PLN
Cena/m²
11 800 PLN
Odbiór do
15.11.2027
Pomieszczenia przynależne
Piwnica nr 18: piwn. nr 18: (w cenie)
Czysta _ m. 23 Piętro IV 4 111,36 m2
1 314 000 PLN
Historia cen
Dostępne
Ładowanie planów...
Ładowanie obrazu...

Czysta _ m. 23

Powierzchnia
111,36 m2
Piętro
Piętro IV
Liczba pokoi
4
Cena
1 314 000 PLN
Cena/m²
11 800 PLN
Odbiór do
15.11.2027
Pomieszczenia przynależne
Piwnica nr 14: piwn. nr 14: (w cenie)

Zadzwoń 85 741 50 87 lub uzupełnij formularz, a skontaktujemy się z Tobą

Wypełnienie formularza oznacza, że podane w nim dane osobowe będą przetwarzane w celu nawiązania kontaktu i udzielenia odpowiedzi na zadane pytanie. Zasady przetwarzania danych i informacje o administratorze znajdziesz w polityce prywatności .

Wysyłam...