phone
Sprzedaż mieszkań 85 74 15 087  |  mieszkania@kombinatbud.pl
◂ Strona Główna / Inwestycje / Apartamenty Czysta / Czysta _ m. 27

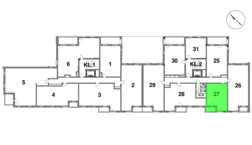
Czysta _ m. 27

Metraż 42,09 m²
Liczba pokoi w mieszkaniu: 2
Piętro Piętro I

538 800 PLN

Historia cen

12 801 PLN/m²

Białystok, Czysta _

Odbiór mieszkania: listopad 2027

Lokalizacja

  • Prestiżowy adres – ul. Czysta w Białymstoku, spokojna boczna ulica w centralnej części miasta,
  • Tuż za rogiem ścisłe centrum – ok. 2 km do Ratusz Białostocki i Pałac Branickich,
  • Lokalizacja do życia - zaprojektowana z myślą o codziennym komforcie i spokoju.

O inwestycji

Apartamenty Czysta to kameralna inwestycja zlokalizowana przy ul. Czystej w Białymstoku — w miejscu, które łączy bliskość centrum z codziennym spokojem. Czterokondygnacyjny budynek obejmuje tylko 49 przestronnych mieszkań, zaprojektowanych z myślą o komforcie i wysokiej jakości życia w mieście.


Architektura budynku została starannie zaprojektowana, by harmonijnie wpisać się w otoczenie, a nowoczesna elewacja i dopracowane części wspólne podkreślają jego elegancki, kameralny charakter. W budynku przewidziano cichobieżne windy z dostępem do garażu podziemnego, salę zabaw dla dzieci oraz funkcjonalne przestrzenie wspólne, sprzyjające codziennemu komfortowi mieszkańców.


Pokaż inwestycje

Zadzwoń 85 741 50 87 lub uzupełnij formularz, a skontaktujemy się z Tobą

Wypełnienie formularza oznacza, że podane w nim dane osobowe będą przetwarzane w celu nawiązania kontaktu i udzielenia odpowiedzi na zadane pytanie. Zasady przetwarzania danych i informacje o administratorze znajdziesz w polityce prywatności .

Wysyłam...