phone
Sprzedaż mieszkań 85 74 15 087  |  mieszkania@kombinatbud.pl
◂ Strona Główna / Inwestycje / Apartamenty Czysta / Czysta _ m. 29

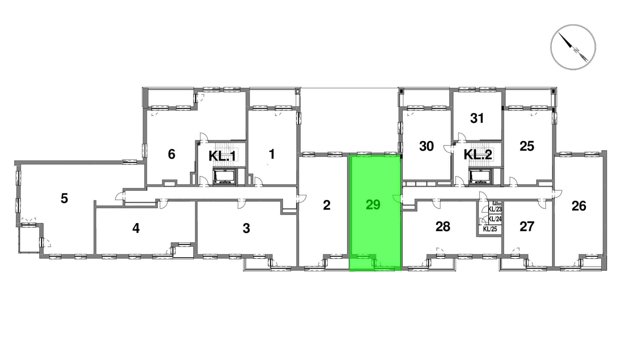
Czysta _ m. 29

Metraż 72,91 m²
Liczba pokoi w mieszkaniu: 3
Piętro Piętro I
Komórka lokatorska w cenie mieszkania

845 800 PLN

Historia cen

11 601 PLN/m²

Pomieszczenia przynależne:

Komórka lokatorska nr 24: (w cenie)
Białystok, Czysta _

Odbiór mieszkania: listopad 2027

Lokalizacja

  • Prestiżowy adres – ul. Czysta w Białymstoku, spokojna boczna ulica w centralnej części miasta,
  • Tuż za rogiem ścisłe centrum – ok. 2 km do Ratusz Białostocki i Pałac Branickich,
  • Lokalizacja do życia - zaprojektowana z myślą o codziennym komforcie i spokoju.

O inwestycji

Apartamenty Czysta to kameralna inwestycja zlokalizowana przy ul. Czystej w Białymstoku — w miejscu, które łączy bliskość centrum z codziennym spokojem. Czterokondygnacyjny budynek obejmuje tylko 49 przestronnych mieszkań, zaprojektowanych z myślą o komforcie i wysokiej jakości życia w mieście.


Architektura budynku została starannie zaprojektowana, by harmonijnie wpisać się w otoczenie, a nowoczesna elewacja i dopracowane części wspólne podkreślają jego elegancki, kameralny charakter. W budynku przewidziano cichobieżne windy z dostępem do garażu podziemnego, salę zabaw dla dzieci oraz funkcjonalne przestrzenie wspólne, sprzyjające codziennemu komfortowi mieszkańców.


Pokaż inwestycje
lokal dostępny
lokal zarezerwowany, prosimy o kontakt z działem sprzedaży

Inne mieszkania

Adres
Piętro
Pokoje
Pow Powierzchnia
Cena brutto
Wizualizacja
Status
Czysta _ m. 2 Piętro I 3 72,91 m2
845 800 PLN
Historia cen
Dostępne
Ładowanie planów...
Ładowanie obrazu...

Czysta _ m. 2

Powierzchnia
72,91 m2
Piętro
Piętro I
Liczba pokoi
3
Cena
845 800 PLN
Cena/m²
11 601 PLN
Odbiór do
15.11.2027
Pomieszczenia przynależne
Piwnica nr 22: piwn. nr 22: (w cenie)
Czysta _ m. 8 Piętro II 3 72,91 m2
860 300 PLN
Historia cen
Dostępne
Ładowanie planów...
Ładowanie obrazu...

Czysta _ m. 8

Powierzchnia
72,91 m2
Piętro
Piętro II
Liczba pokoi
3
Cena
860 300 PLN
Cena/m²
11 799 PLN
Odbiór do
15.11.2027
Czysta _ m. 14 Piętro III 3 72,91 m2
860 300 PLN
Historia cen
Dostępne
Ładowanie planów...
Ładowanie obrazu...

Czysta _ m. 14

Powierzchnia
72,91 m2
Piętro
Piętro III
Liczba pokoi
3
Cena
860 300 PLN
Cena/m²
11 799 PLN
Odbiór do
15.11.2027
Czysta _ m. 20 Piętro IV 3 72,91 m2
860 300 PLN
Historia cen
Dostępne
Ładowanie planów...
Ładowanie obrazu...

Czysta _ m. 20

Powierzchnia
72,91 m2
Piętro
Piętro IV
Liczba pokoi
3
Cena
860 300 PLN
Cena/m²
11 799 PLN
Odbiór do
15.11.2027
Czysta _ m. 26 Piętro I 3 74,05 m2
859 000 PLN
Historia cen
Dostępne
Ładowanie planów...
Ładowanie obrazu...

Czysta _ m. 26

Powierzchnia
74,05 m2
Piętro
Piętro I
Liczba pokoi
3
Cena
859 000 PLN
Cena/m²
11 600 PLN
Odbiór do
15.11.2027
Pomieszczenia przynależne
Komórka lokatorska nr 25: kom. nr 25: (w cenie)
Czysta _ m. 33 Piętro II 3 74,05 m2
873 800 PLN
Historia cen
Dostępne
Ładowanie planów...
Ładowanie obrazu...

Czysta _ m. 33

Powierzchnia
74,05 m2
Piętro
Piętro II
Liczba pokoi
3
Cena
873 800 PLN
Cena/m²
11 800 PLN
Odbiór do
15.11.2027
Pomieszczenia przynależne
Piwnica nr 11: piwn. nr 11: (w cenie)
Czysta _ m. 36 Piętro II 3 72,91 m2
860 300 PLN
Historia cen
Dostępne
Ładowanie planów...
Ładowanie obrazu...

Czysta _ m. 36

Powierzchnia
72,91 m2
Piętro
Piętro II
Liczba pokoi
3
Cena
860 300 PLN
Cena/m²
11 799 PLN
Odbiór do
15.11.2027
Pomieszczenia przynależne
Piwnica nr 2: piwn. nr 2: (w cenie)
Czysta _ m. 39 Piętro III 3 74,05 m2
873 800 PLN
Historia cen
Dostępne
Ładowanie planów...
Ładowanie obrazu...

Czysta _ m. 39

Powierzchnia
74,05 m2
Piętro
Piętro III
Liczba pokoi
3
Cena
873 800 PLN
Cena/m²
11 800 PLN
Odbiór do
15.11.2027
Pomieszczenia przynależne
Piwnica nr 10: piwn. nr 10: (w cenie)
Czysta _ m. 42 Piętro III 3 72,91 m2
860 300 PLN
Historia cen
Dostępne
Ładowanie planów...
Ładowanie obrazu...

Czysta _ m. 42

Powierzchnia
72,91 m2
Piętro
Piętro III
Liczba pokoi
3
Cena
860 300 PLN
Cena/m²
11 799 PLN
Odbiór do
15.11.2027
Pomieszczenia przynależne
Piwnica nr 1: piwn. nr 1: (w cenie)
Czysta _ m. 45 Piętro IV 3 74,05 m2
873 800 PLN
Historia cen
Dostępne
Ładowanie planów...
Ładowanie obrazu...

Czysta _ m. 45

Powierzchnia
74,05 m2
Piętro
Piętro IV
Liczba pokoi
3
Cena
873 800 PLN
Cena/m²
11 800 PLN
Odbiór do
15.11.2027
Pomieszczenia przynależne
Piwnica nr 9: piwn. nr 9: (w cenie)
Czysta _ m. 48 Piętro IV 3 72,91 m2
860 300 PLN
Historia cen
Dostępne
Ładowanie planów...
Ładowanie obrazu...

Czysta _ m. 48

Powierzchnia
72,91 m2
Piętro
Piętro IV
Liczba pokoi
3
Cena
860 300 PLN
Cena/m²
11 799 PLN
Odbiór do
15.11.2027
Pomieszczenia przynależne
Piwnica nr 21: piwn. nr 21: (w cenie)

Zadzwoń 85 741 50 87 lub uzupełnij formularz, a skontaktujemy się z Tobą

Wypełnienie formularza oznacza, że podane w nim dane osobowe będą przetwarzane w celu nawiązania kontaktu i udzielenia odpowiedzi na zadane pytanie. Zasady przetwarzania danych i informacje o administratorze znajdziesz w polityce prywatności .

Wysyłam...