Apartamenty Czysta to kameralna inwestycja zlokalizowana przy ul. Czystej w Białymstoku — w miejscu, które łączy bliskość centrum z codziennym spokojem. Czterokondygnacyjny budynek obejmuje tylko 49 przestronnych mieszkań, zaprojektowanych z myślą o komforcie i wysokiej jakości życia w mieście.
Architektura budynku została starannie zaprojektowana, by harmonijnie wpisać się w otoczenie, a nowoczesna elewacja i dopracowane części wspólne podkreślają jego elegancki, kameralny charakter. W budynku przewidziano cichobieżne windy z dostępem do garażu podziemnego, salę zabaw dla dzieci oraz funkcjonalne przestrzenie wspólne, sprzyjające codziennemu komfortowi mieszkańców.
|
Adres
|
Pow
Powierzchnia
|
Cena brutto
|
|||||||||||||||||||||||||||||||||||||||||||||||||||||||||||||||||||||||||||||||||||||||||||||||||
|---|---|---|---|---|---|---|---|---|---|---|---|---|---|---|---|---|---|---|---|---|---|---|---|---|---|---|---|---|---|---|---|---|---|---|---|---|---|---|---|---|---|---|---|---|---|---|---|---|---|---|---|---|---|---|---|---|---|---|---|---|---|---|---|---|---|---|---|---|---|---|---|---|---|---|---|---|---|---|---|---|---|---|---|---|---|---|---|---|---|---|---|---|---|---|---|---|---|---|---|
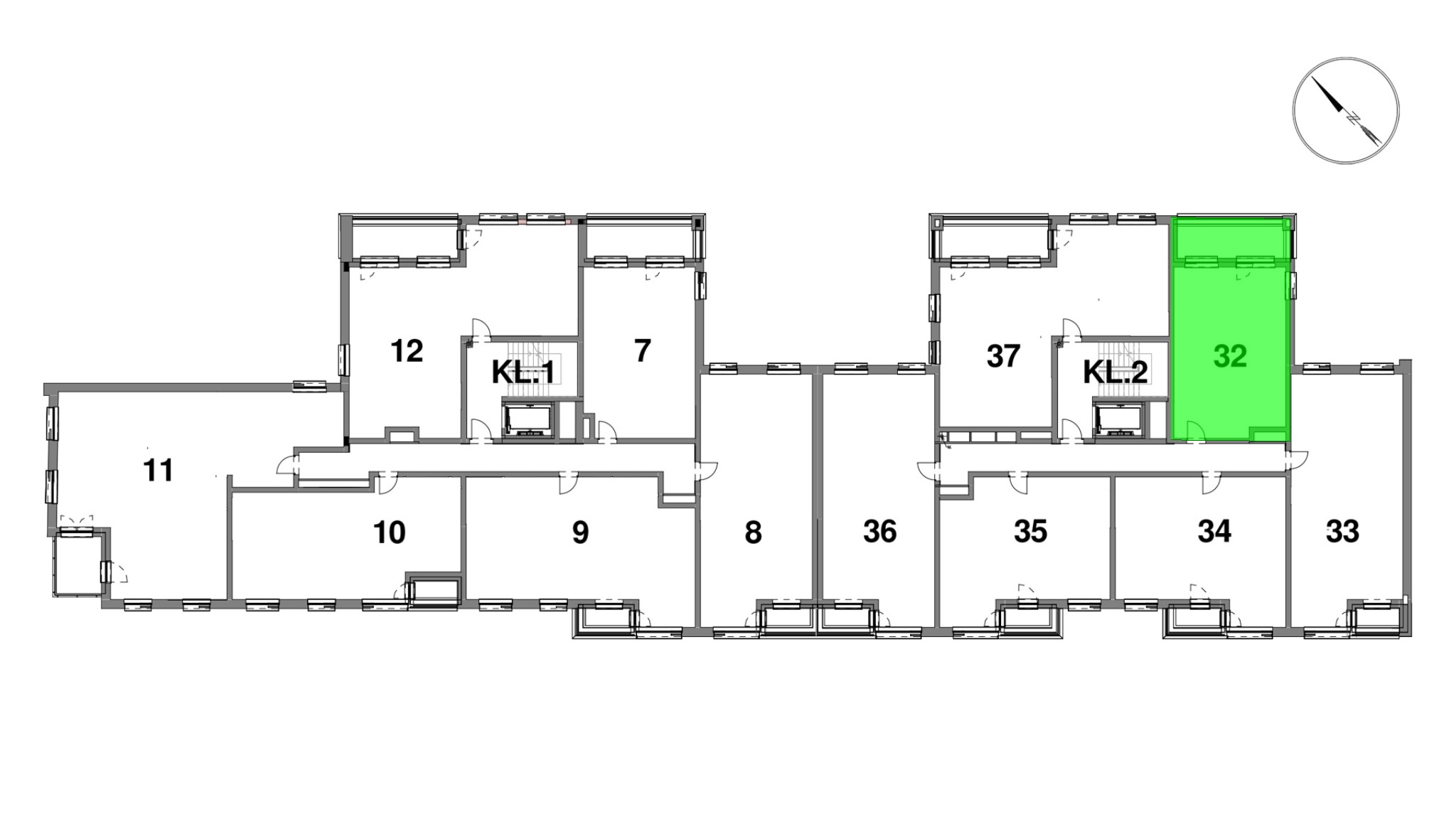
| Czysta _ m. 13 | 52,64 m2 |
621 200 PLN
|
|||||||||||||||||||||||||||||||||||||||||||||||||||||||||||||||||||||||||||||||||||||||||||||||||
|
Ładowanie planów...
Ładowanie obrazu...
Czysta _ m. 13Powierzchnia
52,64 m2
Piętro
Piętro III
Liczba pokoi
2
Cena
621 200 PLN
Cena/m²
11 801 PLN
Odbiór do
15.11.2027
|
|||||||||||||||||||||||||||||||||||||||||||||||||||||||||||||||||||||||||||||||||||||||||||||||||||
| Czysta _ m. 19 | 52,64 m2 |
621 200 PLN
|
|||||||||||||||||||||||||||||||||||||||||||||||||||||||||||||||||||||||||||||||||||||||||||||||||
|
Ładowanie planów...
Ładowanie obrazu...
Czysta _ m. 19Powierzchnia
52,64 m2
Piętro
Piętro IV
Liczba pokoi
2
Cena
621 200 PLN
Cena/m²
11 801 PLN
Odbiór do
15.11.2027
|
|||||||||||||||||||||||||||||||||||||||||||||||||||||||||||||||||||||||||||||||||||||||||||||||||||
| Czysta _ m. 38 | 52,26 m2 |
616 700 PLN
|
|||||||||||||||||||||||||||||||||||||||||||||||||||||||||||||||||||||||||||||||||||||||||||||||||
|
Ładowanie planów...
Ładowanie obrazu...
Czysta _ m. 38Powierzchnia
52,26 m2
Piętro
Piętro III
Liczba pokoi
2
Cena
616 700 PLN
Cena/m²
11 801 PLN
Odbiór do
15.11.2027
|
|||||||||||||||||||||||||||||||||||||||||||||||||||||||||||||||||||||||||||||||||||||||||||||||||||
| Czysta _ m. 44 | 52,26 m2 |
616 700 PLN
|
|||||||||||||||||||||||||||||||||||||||||||||||||||||||||||||||||||||||||||||||||||||||||||||||||
|
Ładowanie planów...
Ładowanie obrazu...
Czysta _ m. 44Powierzchnia
52,26 m2
Piętro
Piętro IV
Liczba pokoi
2
Cena
616 700 PLN
Cena/m²
11 801 PLN
Odbiór do
15.11.2027
|
|||||||||||||||||||||||||||||||||||||||||||||||||||||||||||||||||||||||||||||||||||||||||||||||||||