phone
Sprzedaż mieszkań 85 74 15 087  |  mieszkania@kombinatbud.pl
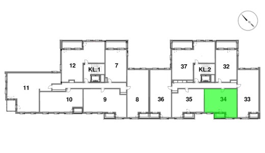
◂ Strona Główna / Inwestycje / Apartamenty Czysta / Czysta _ m. 34

Czysta _ m. 34

Metraż 60,83 m²
Liczba pokoi w mieszkaniu: 3
Piętro Piętro II

717 800 PLN

Historia cen

11 800 PLN/m²

Białystok, Czysta _

Odbiór mieszkania: listopad 2027

  • Prestiżowy adres – ul. Czysta w Białymstoku, spokojna boczna ulica w centralnej części miasta,
  • Tuż za rogiem ścisłe centrum – ok. 2 km do Ratusz Białostocki i Pałac Branickich,
  • Lokalizacja do życia - zaprojektowana z myślą o codziennym komforcie i spokoju.

O inwestycji

Apartamenty Czysta to kameralna inwestycja zlokalizowana przy ul. Czystej w Białymstoku — w miejscu, które łączy bliskość centrum z codziennym spokojem. Czterokondygnacyjny budynek obejmuje tylko 49 przestronnych mieszkań, zaprojektowanych z myślą o komforcie i wysokiej jakości życia w mieście.


Architektura budynku została starannie zaprojektowana, by harmonijnie wpisać się w otoczenie, a nowoczesna elewacja i dopracowane części wspólne podkreślają jego elegancki, kameralny charakter. W budynku przewidziano cichobieżne windy z dostępem do garażu podziemnego, salę zabaw dla dzieci oraz funkcjonalne przestrzenie wspólne, sprzyjające codziennemu komfortowi mieszkańców.


Pokaż inwestycje
lokal dostępny
lokal zarezerwowany, prosimy o kontakt z działem sprzedaży

Inne mieszkania

Adres
Piętro
Pokoje
Pow Powierzchnia
Cena brutto
Wizualizacja
Status
Czysta _ m. 35 Piętro II 3 59,19 m2
698 400 PLN
Historia cen
Dostępne
Ładowanie planów...
Ładowanie obrazu...

Czysta _ m. 35

Powierzchnia
59,19 m2
Piętro
Piętro II
Liczba pokoi
3
Cena
698 400 PLN
Cena/m²
11 799 PLN
Odbiór do
15.11.2027
Czysta _ m. 40 Piętro III 3 60,83 m2
717 800 PLN
Historia cen
Zarezerwowane
Ładowanie planów...
Ładowanie obrazu...

Czysta _ m. 40

Powierzchnia
60,83 m2
Piętro
Piętro III
Liczba pokoi
3
Cena
717 800 PLN
Cena/m²
11 800 PLN
Odbiór do
15.11.2027
Czysta _ m. 41 Piętro III 3 59,19 m2
698 400 PLN
Historia cen
Dostępne
Ładowanie planów...
Ładowanie obrazu...

Czysta _ m. 41

Powierzchnia
59,19 m2
Piętro
Piętro III
Liczba pokoi
3
Cena
698 400 PLN
Cena/m²
11 799 PLN
Odbiór do
15.11.2027
Czysta _ m. 46 Piętro IV 3 60,83 m2
717 800 PLN
Historia cen
Zarezerwowane
Ładowanie planów...
Ładowanie obrazu...

Czysta _ m. 46

Powierzchnia
60,83 m2
Piętro
Piętro IV
Liczba pokoi
3
Cena
717 800 PLN
Cena/m²
11 800 PLN
Odbiór do
15.11.2027
Czysta _ m. 47 Piętro IV 3 59,19 m2
698 400 PLN
Historia cen
Zarezerwowane
Ładowanie planów...
Ładowanie obrazu...

Czysta _ m. 47

Powierzchnia
59,19 m2
Piętro
Piętro IV
Liczba pokoi
3
Cena
698 400 PLN
Cena/m²
11 799 PLN
Odbiór do
15.11.2027

Zadzwoń 85 741 50 87 lub uzupełnij formularz, a skontaktujemy się z Tobą

Wypełnienie formularza oznacza, że podane w nim dane osobowe będą przetwarzane w celu nawiązania kontaktu i udzielenia odpowiedzi na zadane pytanie. Zasady przetwarzania danych i informacje o administratorze znajdziesz w polityce prywatności .

Wysyłam...